SSTC

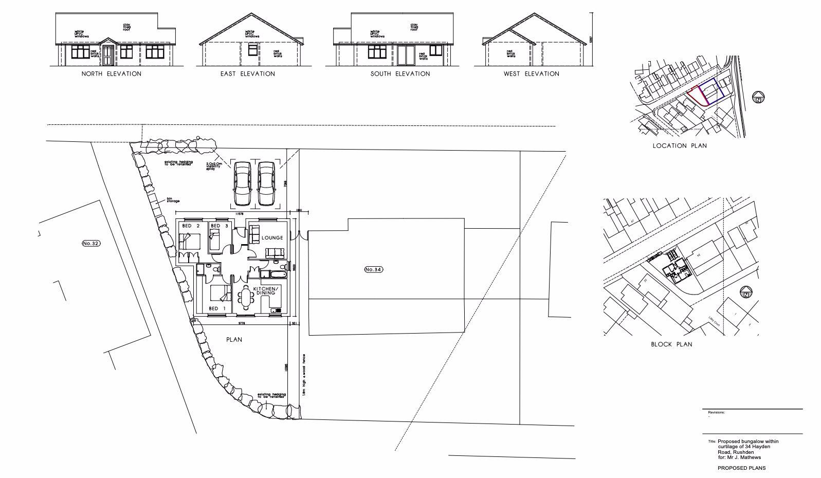
Hayden Road, Rushden

Price £130,000

Overview

Not Specified for sale in Hayden Road, Rushden

Key Features:

  • NE/22/00793/FUL
  • Garden land with previous planning permission for 3 bed detached bungalow
  • Dwelling to be 89.52 sqm


Charles Orlebar presents - A site with lapsed planning permission (that can/will be resubmitted) for a three bedroom detached bungalow on this quiet road within easy walking distance of the town centre. For more information, please call 01933 313600.

Read more
Sorry! An EPC is not available for this property.

High Street, Rushden

Retail Property (High Street)

High Street, Rushden

Polebrook, Nr Oundle

5 Bedroom Detached House

Polebrook, Nr Oundle

Oak Mews, Pemberton Street, Rushden

3 Bedroom Semi-Detached House

Oak Mews, Pemberton Street, Rushden

Park Road, Rushden

2 Bedroom Flat

Park Road, Rushden

Warmonds Hill Higham Ferrers

1 Bedroom Ground Floor Flat

Warmonds Hill Higham Ferrers

Jubilee Gardens, Rushden

2 Bedroom Flat

Jubilee Gardens, Rushden


CONTACT US

Rushden | 01933 313600
rushden@charlesorlebar.co.uk

Associated Park Lane Office | 0203 3688173

ABOUT US

We are a local and knowledgeable estate agency firm in Northamptonshire and North Bedfordshire with offices in Rushden and London. We are enthusiastic, proactive and very trustworthy.

FOLLOW US


2018 © Charles Orlebar Estate Agents Ltd. All rights reserved. Terms and Conditions | Privacy Policy | Cookie Policy | Complaints Procedure

Charles Orlebar Estate Agents. Registered in England.  Company No: 4707738.  Registered Office Address: 23, Cottingham Way, Thrapston, Northamptonshire, NN14 4PL. 
Book a Property Valuation Update Cookies Preferences